
ТОП-6 чертежей помогут сделать отрезной станок из болгарки своими руками без ошибок и дополнительных затрат. Ответы на часто задаваемые вопросы, подсказки.
а) руководство;
б) руки и ноги.
а) пневматические и электрические;
б) аккумуляторная.
а) 400Вт;
б) 900Вт.
а) обрезка, обрезка;
б) шлифование, фрезерование, заточка.
а) над столешницей;
б) под столешницу.
Ответы:
Шлифовальный станок с электрическим приводом выполняет множество различных рабочих операций. Для снижения трудозатрат при повышении точности его используют как основу для станка.
«Болгарка» - это распространенное название угловой шлифовальной машины (угловой шлифовальной машины). При смене лезвия это универсальное устройство трансформируется для резки, выполнения других рабочих операций.
Шлифовальные машины



Чтобы не сомневаться в правильности принятого решения, изучите следующие факты:
Для решения обозначенных задач, повышающих производительность, необходима качественная машина. Он создается по следующему алгоритму:
Типовую циркулярную пилу сделать несложно, если закрепить болгарку под рабочим столом с прорезью. Необходимо продумать систему направляющих для высокоточного движения деталей.

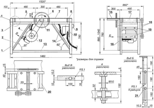
Картинка n. 1. Принципиальная схема
Посмотрите на изображение n. 1, как выглядит типичный обрезной станок. Здесь болгарка закреплена на подвижном шарнире, что немного усложняет конструкцию. Эта схема имеет ряд преимуществ:

Картинка n. 2. Подставка для болгарки
Собирается такой силовой каркас из стандартных стальных уголков, квадратных труб. Сварные соединения прочнее. Но также допустимо создание сборной конструкции с помощью шурупов и гаек.

Рисунок № 3. Сборочный чертеж маятниковой пилы
Такую конструкцию можно использовать как образец для изготовления качественной шлифовальной машины по металлу. Оборудованный колесами, он облегчает перемещение тяжелого продукта.
Довожу до вашего сведения! В другие стойки необходимо установить винтовые опоры. С их помощью компенсируются неровности напольного покрытия.

Картинка n. 4. Маятниковая циркулярная пила
На изображении показан пример деревообрабатывающего станка. Эта техника подходит для вырезания больших кусков. Необходимо выбрать болгарку достаточной мощности, чтобы хватило для работы с дисками большого диаметра. На обратном плече рычага (вместо электродвигателя, как на чертеже) закреплен груз. Вес и место установки выбираются исходя из личных потребностей и специфики проекта.

Изображение № 5. Циркулярная пила для рисования
Эту машину можно модернизировать для установки на нижнюю часть угловой шлифовальной машины. Если предполагается продольный распил дерева, то такое инженерное решение будет оптимальным.

Картинка n. 6. Изготовление промышленной торцовочной пилы по дереву
Посмотрите на изображение n. 6. С его помощью можно создавать самые разные проекты своими руками. Рекомендуется обратить внимание на пружину, возвращающую рабочий агрегат в исходное состояние. Поворотный стол с измерительными приборами поможет вам создать машину с более высокими требованиями к допускам.

Картинка n. 7. Конструкция кровати
При изготовлении этой детали машины используется толстый металл. Это решение увеличивает стоимость и вес, но продлевает срок службы, увеличивает надежность, улучшает крепление навесного оборудования и повышает точность обработки.
Чтобы сделать машину самостоятельно, нужно выбрать дизайн, соответствующий вашим имеющимся навыкам и способностям. Проще всего собрать станок из заготовок, созданных по чертежам в мастерской, специализирующейся на металлообработке. В противном случае придется осваивать технологии сварки и приобретать необходимое оборудование.
Ниже представлен пошаговый алгоритм самостоятельной сборки с полезными комментариями:

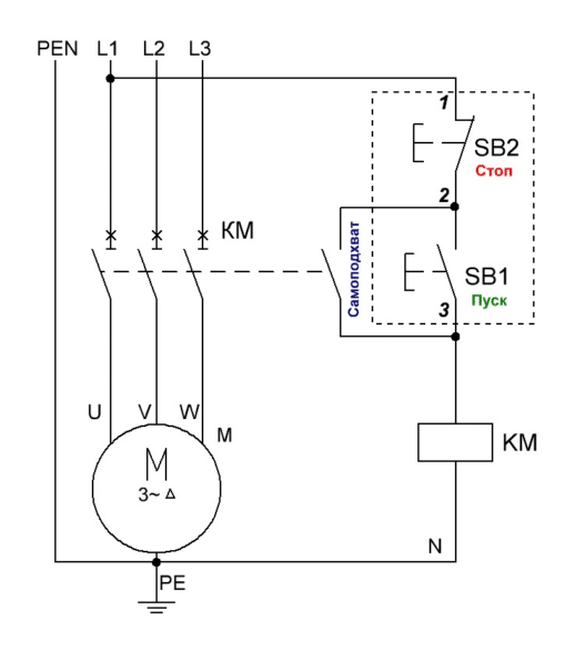
Рисунок № 8. Подключение магнитного пускателя с кнопками отключения и реле тепловой защиты
Посмотрите на рисунок n. 8. Вот схема подключения к чертежам, улучшающая защиту оборудования от перегрева. Это также полезно для быстрого аварийного отключения. Одна или несколько кнопок размыкания соответствующей цепи устанавливаются в удобном месте на корпусе станка. Также используются ножные переключатели.
Надежная клетка для кормления - основа безопасности. Кроме того, они закрывают движущиеся агрегаты, предотвращая проникновение посторонних людей в рабочую зону. В процессе изготовления деталей используются защитные очки, маски, перчатки и другие средства индивидуальной защиты.
Помимо надежного усиления станка определенное положение болгарки служит для защиты оператора. В целях безопасности и предотвращения повреждения одежды он установлен так, чтобы луч искр во время работы был направлен в сторону, противоположную человеку.
Блок для инструментов этой категории очень мощный. Качественная шлифовальная машина отличается небольшими размерами, прочностью и устойчивостью к высоким нагрузкам. В некоторых моделях предусмотрена регулировка скорости. Современные угловые шлифовальные машины стандартно оснащены защитой от перегрева. Такие изделия - хорошая основа для изготовления самодельных станков различного функционального назначения.

Картинка n. 9. Этот самодельный станок для поперечной резки подходит для обработки гранитных и мраморных плит

Картинка n. 10. Схема токарного станка по дереву из шлифовального круга
Здесь применяется стандартный дизайн. Единственный отличный агрегат - это устройство для передачи усилия на шпиндель. Переключение необходимо для регулировки скорости и крутящего момента в соответствующем диапазоне.

Рисунок № 11. Для ремонта разных инструментов фрезер по дереву своими руками необходимо оснастить универсальной головкой
Довожу до вашего сведения! Это приспособление можно закрепить на коленчатом валу после разборки штатной коробки передач.

Изображение № 12. Быстрое устранение неполадок
Посмотрите на изображение n. 12 показано, как можно собрать полноценную циркулярную пилу / циркулярную пилу из имеющихся инструментов за 15-20 минут. С его помощью обеспечить точную обработку деревянных заготовок проще, чем с помощью портативного электроинструмента.

Картинка n. 13. По картинке несложно понять принцип работы и устройство плоскошлифовального станка

Картинка № 14. Шлифовальный станок
Здесь потенциально опасные зоны защищены от искр с помощью пленок. Временное, но недорогое и быстрое решение практической проблемы.

Фото № 15. Это оборудование, оснащенное подходящим ножом, используется для резки кирпича, керамической плитки, природного / искусственного камня

Картинка n. 16. Жесткое крепление к прочной столешнице превращает обычную болгарку в практичную точилку для цепей
ОЧЕНЬ ОПАСНО! В любом случае нельзя забывать о целевом назначении оборудования. Если вы делаете самодельный станок для резки металла, вам следует подумать об усилении конструкции. Обработка пластиковых и деревянных заготовок происходит с меньшими нагрузками.
LBM выпускается с мощностью привода от 340 Вт до 2,5 кВт. Для увеличения крутящего момента на рабочем валу используются редукторы и увеличение оборотов до 10-12 тысяч в минуту. Выберите модель, подходящую для конкретного типа машины. Чтобы исключить быстрый износ, специалисты предлагают сделать небольшой запас и использовать оборудование с двигателем от 0,9 кВт и более.
Количество ручек и специальных приспособлений для выполнения ручных операций в данном случае значения не имеет. Однако полезны следующие компоненты и функции:
Станок для резки металла и дерева своими руками из болгарки
В этом списке представлены бренды, технология которых получила высокие оценки обычных и профессиональных пользователей:
Чтобы машина долгое время выполняла свои функции, необходимо соблюдать следующие простые правила:
Вот рекомендации по наиболее частым тематическим вопросам:
В точках крепления угловых шлифовальных машин не используются амортизаторы для снижения шума и вибрации, чтобы не снижать точность. Все движущиеся части спроектированы так, чтобы сохранять геометрию в течение долгого времени.
С деревом легче работать, чем с металлом, поэтому из этого материала можно сделать стол и многие другие детали.
Увеличение энергозатрат не всегда оправдано. Точный расчет производится с учетом необходимых оборотов / крутящего момента.
Слишком быстрая резка может повредить полимер и другие детали.
Для безопасной работы необходимо использовать средства индивидуальной защиты, даже если поток искр направлен «от вас».
Бензогенератор не заводится после долгого простоя - как бытьСтатья о способах запуска бензогенератора в разных условиях, причины несиправности и способы устранения.
Катушки для бензокосы: особенности, установка и проверкаКак установить катушку на триммер? Обзор катушек (головок) для триммеров: виды, установка, классификация, типы, особенности
ТОП-16 лучших триммеров для дачи: рейтинг 2020-2021 года и описание ключевых характеристик устрой...Из данной статьи вы узнаете о лучших триммерах для дачи и какой выбрать для травы. Обзор ТОП-16 устройств, их технические характеристики, преимущества и недостатки, принцип работы и отзывы покупате...
Пошаговая инструкция сборки газонокосилки электрической своими рукамиГазонокосилка электрическая своими руками – это двойная польза, поскольку устройство поможет в порядке содержать участок любого размера, сэкономив на приобретении фирменного инструмента.
Топ-10 лучших аэраторов для газона, как выбрать хороший аэратор?Какой хороший аэратор выбрать для газона по отзывам и цене качеству? Рейтинг самых лучших и популярных газонных аэраторов!
Электрическая газонокосилка: как выбрать?Виды и варианты электрических газонокосилок: рейтинг популярных моделей классических косилок с травосборником и электро-триммеров, их достоинства и недостатки, советы по выбору аппарата для дачи и ...
Чем лучше косить траву: виды садового оборудования и режущие инструментыКак лучше скосить траву? Обзор вспомогательного инструмента и способов. Преимущества и недостатки.